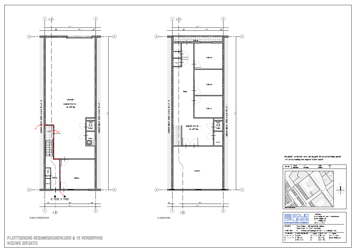
Bij het splitsen van een pand is het belangrijk dat er goed opgelet word op veiligheid. Vluchtwegen, brandcompartimenten, daglicht, ventilatie etc. moet goed uitgezocht worden zodat een veilig en verantwoord gebruik van de individuele bedrijfspanden gegarandeerd kan worden. Daarnaast moet het parkeren goed worden geregeld zodat er geen overlast veroorzaakt word.
- Home
- Over Ons
- Diensten
- Projecten
- Meubels op Maat, Rotterdam
- AyaSofia Moskee Renovatie/Uitbreiding, Den Haag
- Dakopbouw, Den Haag
- Bouwkundig opnamerapport pand, Castricum
- Dakopbouw Scheveningen, Den Haag
- Soba Restaurant & Café Zuiderpark, Den Haag
- Woningen in Bedrijfsruimte, Den Haag
- Visrestaurant, Turkije
- Dakopbouw, Den Haag
- Kast op maat, Den Haag
- Opstapjes voor de kinderen, Rotterdam
- Brugontwerp Rottermeren, Rotterdam
- Gevelwijziging, Woerden
- Diyanet Moskee, Delft
- Plafond- en Vloerontwerp Trouwzaal Zuiderpark, Den Haag
- Woonzorgcentrum, Delft
- Global Housing, India
- Herontwikkeling Santos, Rotterdam
- Gebouwencomplex in Afrika, Tsjaad
- Terrasaanvraag, Maasdijk
- Toegangsbrug naar Woning, Amsterdam
- Terras op water restaurant Scheveningen, Den Haag
- Splitsing van Bedrijfspand, Den Haag
- Het uitbreiden van een villa, Den Haag
- Het realiseren van een serre, Den Haag
- Extra Verdiepingsvloer Bedrijfspand, Amsterdam
- Nieuwe kozijnen Monument, Leidschendam
- Verbouwing luxe Herenhuis, Den Haag
- Nieuwe kozijnen Woning, Hellevoetsluis
- Nieuwbouwwoning, Almere
- In- en Uitrit, Den Haag
- Dakkapel, Den Haag
- Werkwijze
- Contact
- Home
- Over Ons
- Diensten
- Projecten
- Meubels op Maat, Rotterdam
- AyaSofia Moskee Renovatie/Uitbreiding, Den Haag
- Dakopbouw, Den Haag
- Bouwkundig opnamerapport pand, Castricum
- Dakopbouw Scheveningen, Den Haag
- Soba Restaurant & Café Zuiderpark, Den Haag
- Woningen in Bedrijfsruimte, Den Haag
- Visrestaurant, Turkije
- Dakopbouw, Den Haag
- Kast op maat, Den Haag
- Opstapjes voor de kinderen, Rotterdam
- Brugontwerp Rottermeren, Rotterdam
- Gevelwijziging, Woerden
- Diyanet Moskee, Delft
- Plafond- en Vloerontwerp Trouwzaal Zuiderpark, Den Haag
- Woonzorgcentrum, Delft
- Global Housing, India
- Herontwikkeling Santos, Rotterdam
- Gebouwencomplex in Afrika, Tsjaad
- Terrasaanvraag, Maasdijk
- Toegangsbrug naar Woning, Amsterdam
- Terras op water restaurant Scheveningen, Den Haag
- Splitsing van Bedrijfspand, Den Haag
- Het uitbreiden van een villa, Den Haag
- Het realiseren van een serre, Den Haag
- Extra Verdiepingsvloer Bedrijfspand, Amsterdam
- Nieuwe kozijnen Monument, Leidschendam
- Verbouwing luxe Herenhuis, Den Haag
- Nieuwe kozijnen Woning, Hellevoetsluis
- Nieuwbouwwoning, Almere
- In- en Uitrit, Den Haag
- Dakkapel, Den Haag
- Werkwijze
- Contact















