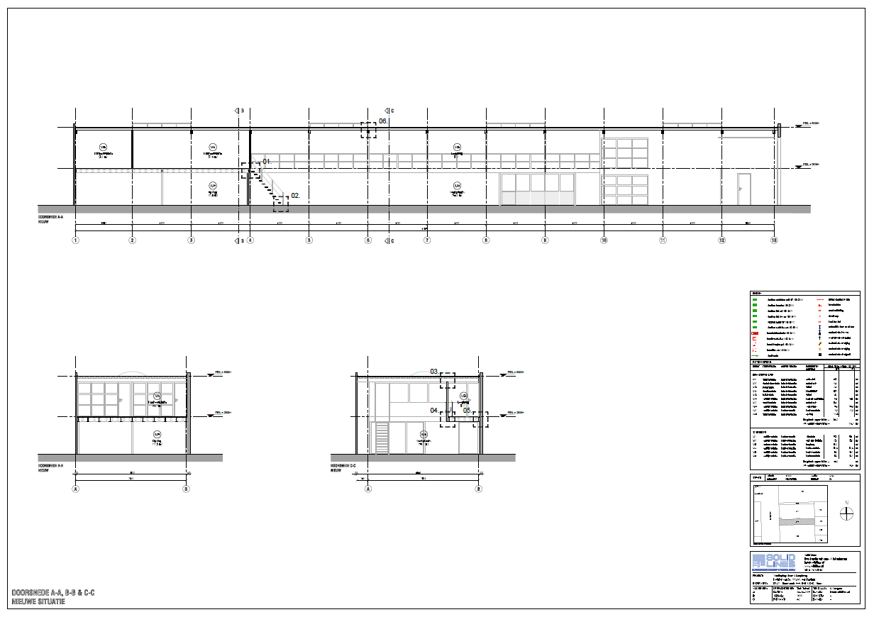
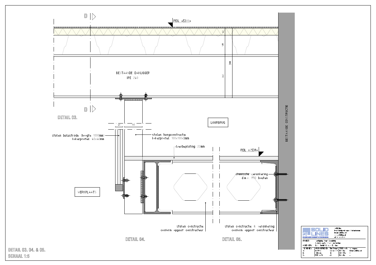
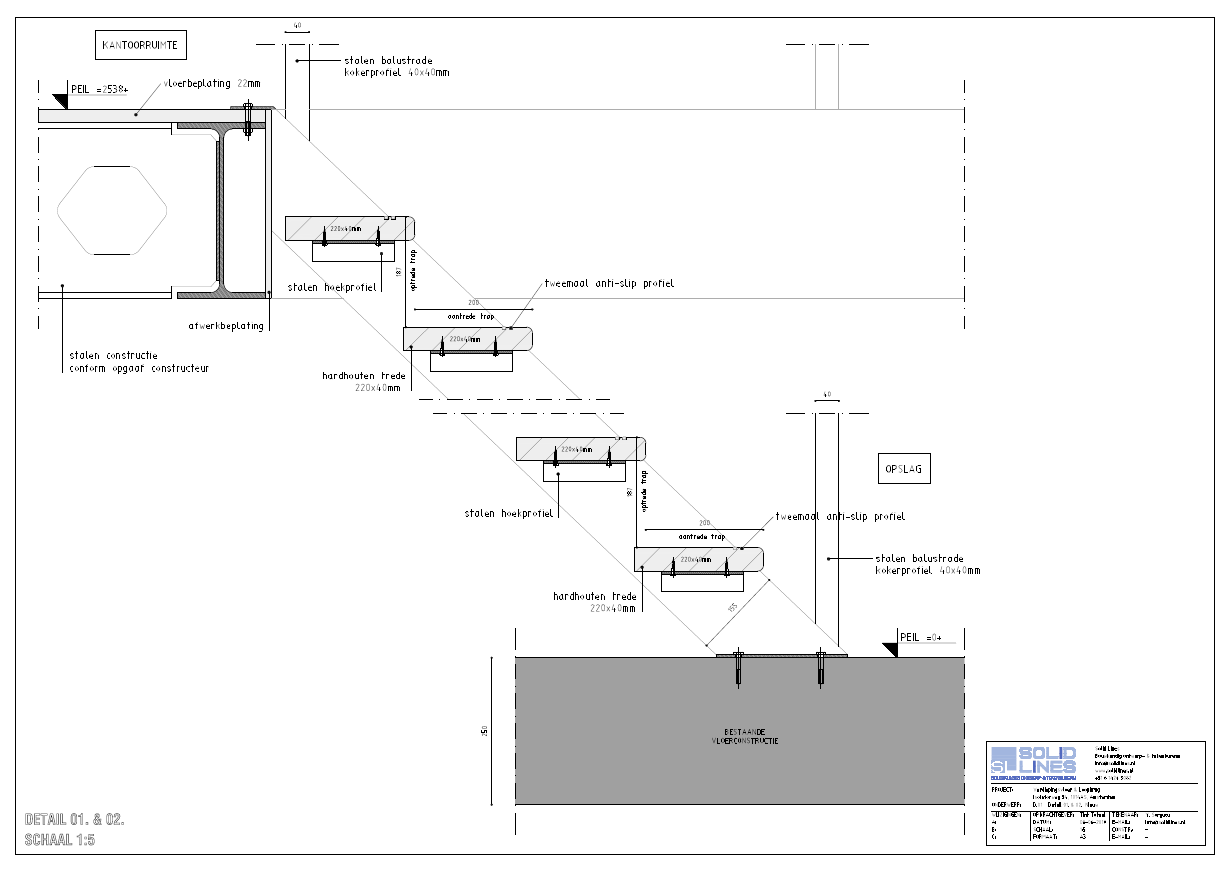
Een groeiend bedrijf heeft in zijn pand extra ruimte nodig. Een extra tussenverdieping is de oplossing! Omdat het een bestaand pand is met een bestaande constructie is het realiseren van een extra tussenverdieping niet zo gedaan. De bestaande constructie en fundering moet goed berekend worden zodat de nieuwe vloer veilig geplaatst kan worden.
- Home
- Over Ons
- Diensten
- Projecten
- Meubels op Maat, Rotterdam
- AyaSofia Moskee Renovatie/Uitbreiding, Den Haag
- Dakopbouw, Den Haag
- Bouwkundig opnamerapport pand, Castricum
- Dakopbouw Scheveningen, Den Haag
- Soba Restaurant & Café Zuiderpark, Den Haag
- Woningen in Bedrijfsruimte, Den Haag
- Visrestaurant, Turkije
- Dakopbouw, Den Haag
- Kast op maat, Den Haag
- Opstapjes voor de kinderen, Rotterdam
- Brugontwerp Rottermeren, Rotterdam
- Gevelwijziging, Woerden
- Diyanet Moskee, Delft
- Plafond- en Vloerontwerp Trouwzaal Zuiderpark, Den Haag
- Woonzorgcentrum, Delft
- Global Housing, India
- Herontwikkeling Santos, Rotterdam
- Gebouwencomplex in Afrika, Tsjaad
- Terrasaanvraag, Maasdijk
- Toegangsbrug naar Woning, Amsterdam
- Terras op water restaurant Scheveningen, Den Haag
- Splitsing van Bedrijfspand, Den Haag
- Het uitbreiden van een villa, Den Haag
- Het realiseren van een serre, Den Haag
- Extra Verdiepingsvloer Bedrijfspand, Amsterdam
- Nieuwe kozijnen Monument, Leidschendam
- Verbouwing luxe Herenhuis, Den Haag
- Nieuwe kozijnen Woning, Hellevoetsluis
- Nieuwbouwwoning, Almere
- In- en Uitrit, Den Haag
- Dakkapel, Den Haag
- Werkwijze
- Contact
- Home
- Over Ons
- Diensten
- Projecten
- Meubels op Maat, Rotterdam
- AyaSofia Moskee Renovatie/Uitbreiding, Den Haag
- Dakopbouw, Den Haag
- Bouwkundig opnamerapport pand, Castricum
- Dakopbouw Scheveningen, Den Haag
- Soba Restaurant & Café Zuiderpark, Den Haag
- Woningen in Bedrijfsruimte, Den Haag
- Visrestaurant, Turkije
- Dakopbouw, Den Haag
- Kast op maat, Den Haag
- Opstapjes voor de kinderen, Rotterdam
- Brugontwerp Rottermeren, Rotterdam
- Gevelwijziging, Woerden
- Diyanet Moskee, Delft
- Plafond- en Vloerontwerp Trouwzaal Zuiderpark, Den Haag
- Woonzorgcentrum, Delft
- Global Housing, India
- Herontwikkeling Santos, Rotterdam
- Gebouwencomplex in Afrika, Tsjaad
- Terrasaanvraag, Maasdijk
- Toegangsbrug naar Woning, Amsterdam
- Terras op water restaurant Scheveningen, Den Haag
- Splitsing van Bedrijfspand, Den Haag
- Het uitbreiden van een villa, Den Haag
- Het realiseren van een serre, Den Haag
- Extra Verdiepingsvloer Bedrijfspand, Amsterdam
- Nieuwe kozijnen Monument, Leidschendam
- Verbouwing luxe Herenhuis, Den Haag
- Nieuwe kozijnen Woning, Hellevoetsluis
- Nieuwbouwwoning, Almere
- In- en Uitrit, Den Haag
- Dakkapel, Den Haag
- Werkwijze
- Contact













